10 Tow Road, Biddeford, ME 04005

$675,000
  • 10 Tow Road, Biddeford, ME 04005 Main Photo

61 Total Photos [Click to View All]

Active
BEDS5 BATHS3 full SQUARE FEET2,739 MLS#1651925
STATUSActive PROPERTY TYPEResidential - Single Family

Property Description

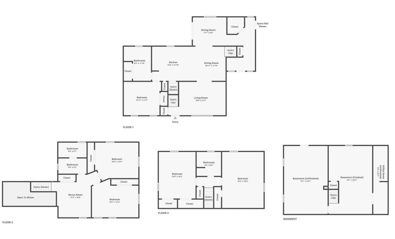
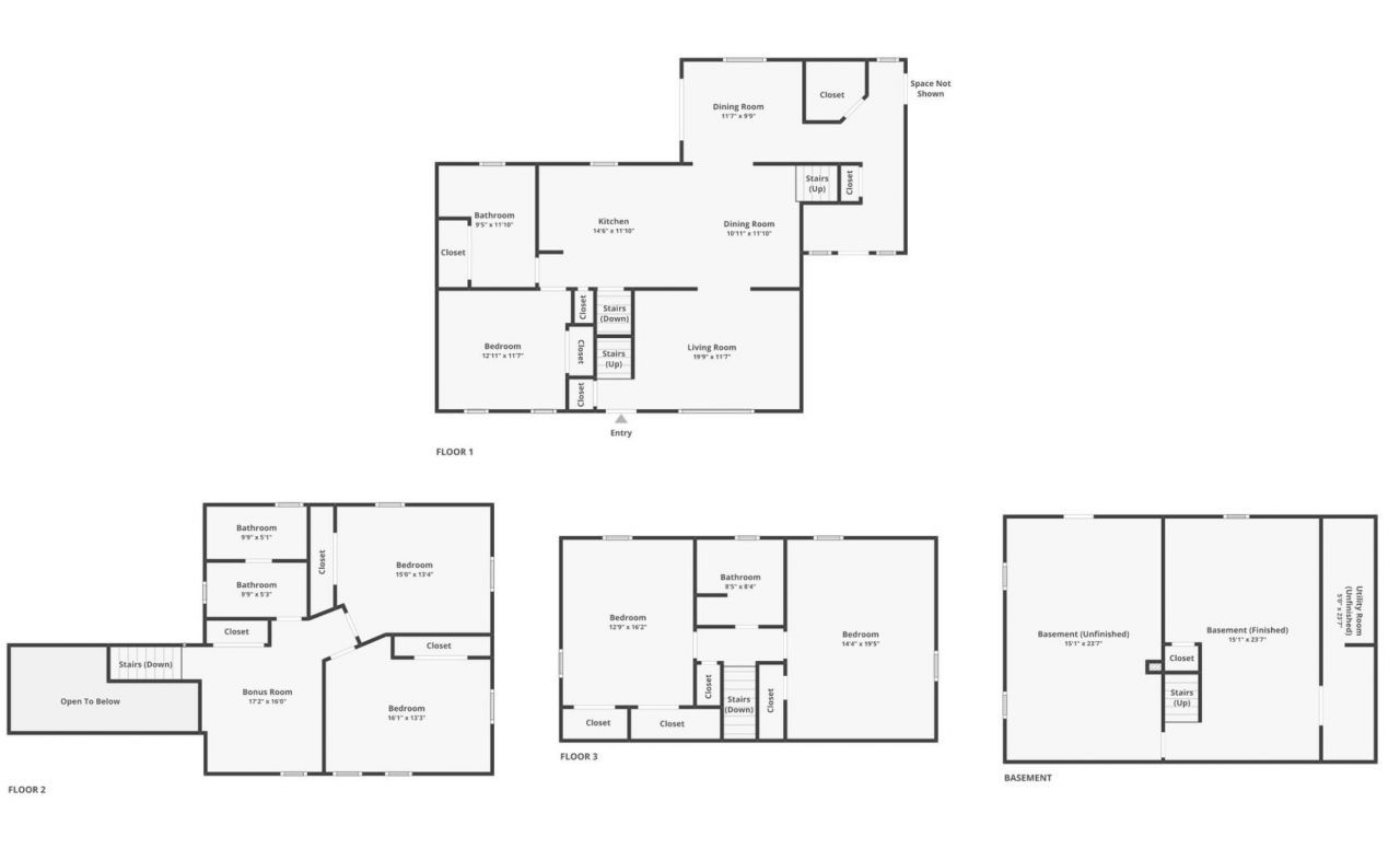
Your Home Search Stops Here? a peaceful, private retreat set on a quiet road, yet just minutes from the very best of coastal Maine. You're only 10 minutes to both Fortune's Rocks Beach and Biddeford Pool, offering some of southern Maine's most beautiful shoreline. The Marblehead public boat launch on the Saco River is just 2 miles away, and vibrant downtown Biddeford ? only 4 miles from home ? features award-winning restaurants, breweries, shops, pickleball courts, and year-round activity.This exceptionally well-maintained 5-bedroom, 3-bath residence offers 2,739 square feet of thoughtfully designed living space. Renovated in 2012, the home blends classic comfort with modern convenience, ideal for entertaining, or multi-generational living.Inside, you're welcomed by radiant floor heat and generous oversized closets. The main level features a bright eat-in kitchen with a breakfast nook and cozy pellet stove, a first-floor bedroom, full bath with laundry, and a spacious family room perfect for gathering.Upstairs, you'll find the primary bedroom, updated full bath, and an additional guest bedroom. A private wing over the garage offers two more bedrooms, a full bath, and a second family room ? creating flexible space for guests, extended family, or a private retreat.The lower level includes a finished recreation room ideal for an office, gym, or playroom, plus abundant storage. An oversized three-bay garage provides ample space for vehicles, hobbies, and gear.Set on a large, level lot, the sunny pool deck creates the perfect setting for relaxing or entertaining in complete privacy.10 Tow Road offers the rare balance of tranquility and convenience.

10 Tow Road | MLS# 1651925

This single family home located at 10 Tow Road, Biddeford, ME 04005 is currently listed for sale with an asking price of $675,000. This property was built in 1991 and has 5 bedrooms and 3 full baths with 2739 sq. ft. Search Biddeford real estate on www.spragueandcurtis.com today.

Property Features

Property Type: Residential - Single Family
Basement: Bulkhead
Garage: 3 car attached
Heating: Baseboard, Radiant, Pellet Stove
Home Style: Cape Cod
Lot Size: 0.94 Acres
Roof Type: Shingle
Taxes: $6,234
Year Built: 1991

Feature Descriptions

Electric: Circuit Breakers
Flooring: Carpet, Tile, Vinyl, Wood
Sewer: Septic Tank
Special View Info: Scenic
SQ FT Above Grade: 2739
SQ FT Below Grade: 0
Total Rooms: 10
Water: Private, Well

Listed By / Shown By

Listed By

Agency Name: Maine Real Estate Co
Agency Phone: 207-292-1030

Shown By

Agency Title: Sprague and Curtis Real Estate
Agency Phone: 207-623-1123

IDX logo

Estimate Your Payment

Estimated Payment

$ 2,218.63 per month $1,502.26 Principal & Interest $519.50 Property Tax $196.88 Homeowner's Insurance

Change Payment Information

%
years/fixed
yearly
yearly (est.)
(Payments are an estimate and may vary by lender)

Login to My Homefinder

Pixel